Resort garden layout plan and landscaping structure details dwg file
Description
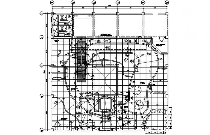
Resort garden layout plan and landscaping structure details here you can download a free file of park in auto-cad format with main entry gate and roads, landmarks, tree view and green area with landscaping view with garden decorative equipment provide. Sports equipment details and gazebo and kiosk, food court, wooden benches and much more of garden details.
Uploaded by:
Eiz
Luna

