Three story house main elevation, section and structure details dwg file
Description
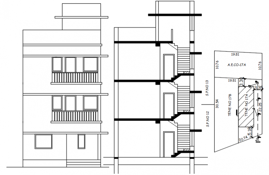
Three story house main elevation, section and structure details that includes a detailed view of flooring view with indoor and outdoor doors and windows view and staircase elevation and sectional view details, balcony view with wall design, parking area and dimensions and roof or terrace view and much more of house building details.
Uploaded by:
Eiz
Luna

