Housing apartment drawings details plan elevation and section dwg file
Description
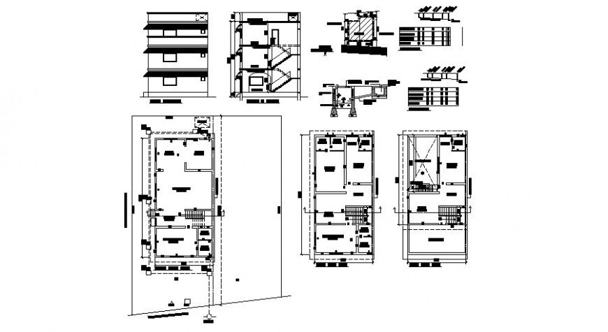
Housing apartment drawings details plan elevation and section dwg file that shows housework plan details with room dimension details and floor level details. House different sides elevation and sectional details. Dimension and hidden line details are also shown in the drawing.
Uploaded by:
Eiz
Luna

