Housing drawing details plan 2d view autocad software file
Description
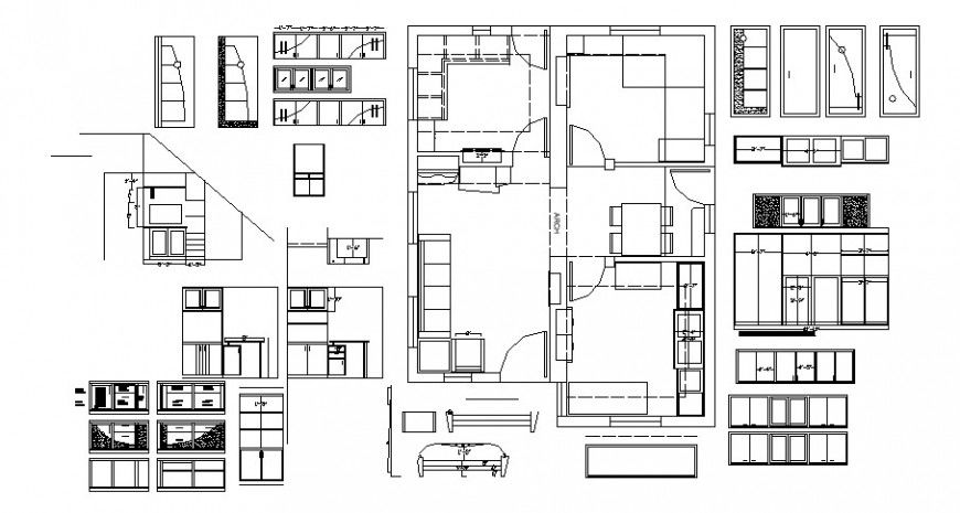
Housing drawing details plan 2d view autocad software file that shows house floor plan details with furniture blocks details and door window blocks details along with other furniture units details.
Uploaded by:
Eiz
Luna

