Hospital Clinic building drawings details work plan autocad file
Description
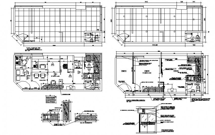
Hospital Clinic building drawings details work plan autocad file that shows floor plan of building units with floor level details and furniture layout plan details. Saniatry toilet area along with dimension and hidden line details door and window blocks details are also shown in drawing.
Uploaded by:
Eiz
Luna

