Bungalow drawings 2d view Floor plan layout file in autocad software file
Description
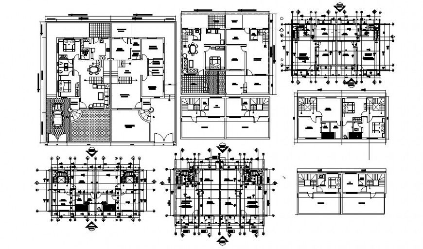
Bungalow drawings 2d view Floor plan layout file in autocad software file that shows a work plan of the housing unit with some furniture blocks details and door window blocks details also shown in drawings. Room dimension along with room details of drawing room bedroom area kitchen and dining area along with terrace plan details.
Uploaded by:
Eiz
Luna

