2d Drawings of building details elevation plan and section autocad softwrae file
Description
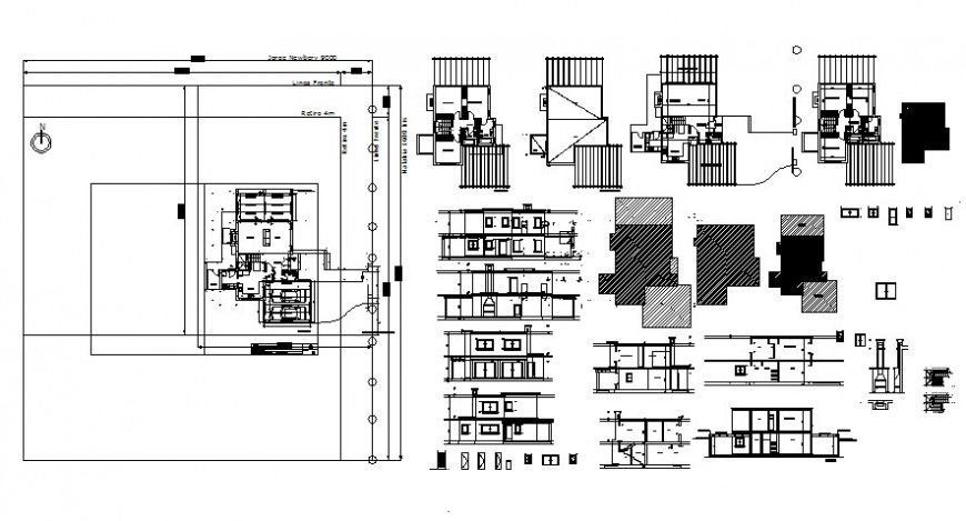
2d Drawings of building details elevation plan and section autocad softwrae file that shows work plan of house with room dimension details and floor level details along with parking space details and dimension hidden line details. Staircase and other details of building alos shown in drawings. House front elevation is also shown in drawings.
Uploaded by:
Eiz
Luna

