Parking plan with house elevation in AutoCAD file
Description
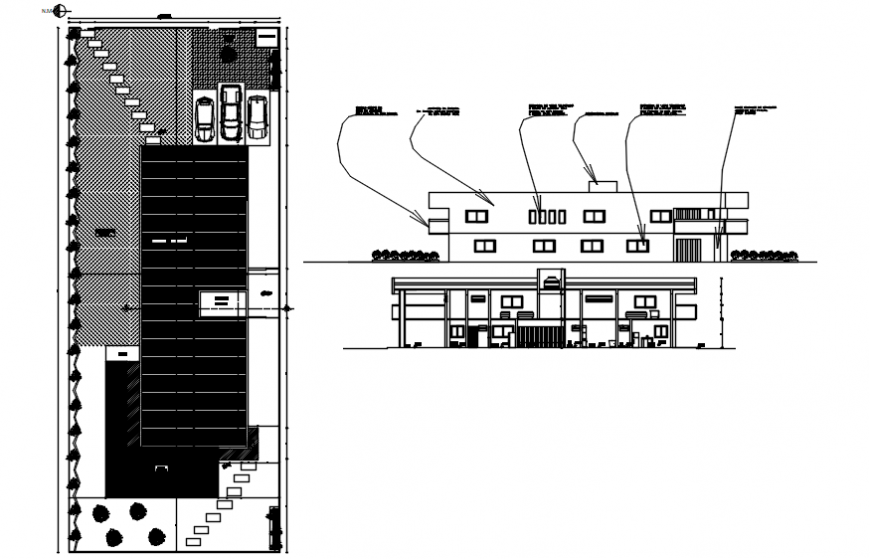
Parking plan with house elevation in AutoCAD file plan include detail of area distribution with wall and support of door position with parking area lot and its parking area, elevation include detail of wall and wall support with door and window with necessary detail of house.
Uploaded by:
Eiz
Luna

