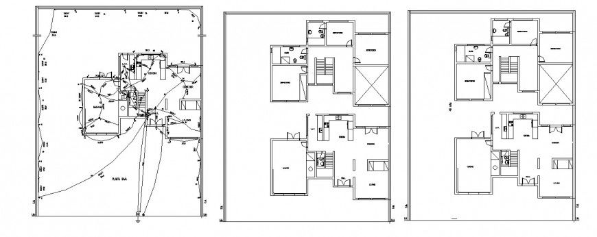
Sanitary installation and electrical layout plan drawing details of house dwg file
Description
Sanitary installation and electrical layout plan drawing details of house that includes a detailed view of free download file of power layout details and lighting layout details, computation and schedule of loads with general notes and specifications, panel board details, riser diagram with sanitary equipment installation details, doors and ventilation details with plumbing details and interior details with dimensions details, wall section details and much more of house details.
Uploaded by:
Eiz
Luna

