House section, sanitary section, plan, installation and drawing details dwg file
Description
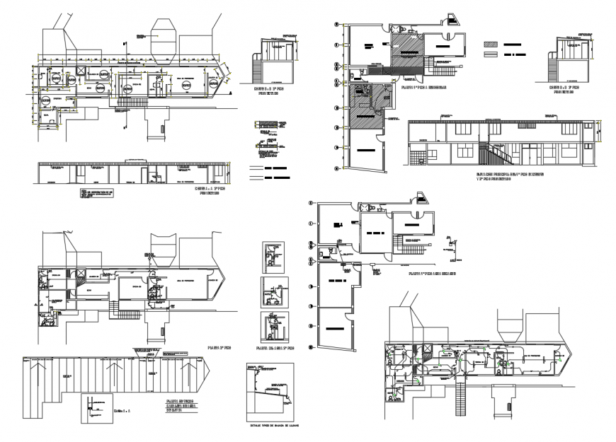
House section, sanitary section, plan, installation and drawing details here you can download a free auto-cad file of toilet plan details with toilet sectional details and passage, sanitary equipment installation details, doors and ventilation details with plumbing details and interior details with dimensions details, wall section details and much more of sanitary installation details.

Uploaded by:
Eiz
Luna

