Drawing of amir house details AutoCAD file
Description
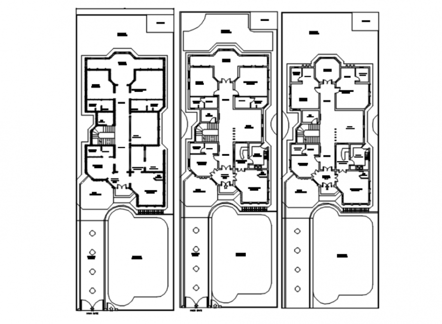
Drawing of amir house details AutoCAD file which includes floor plan details with the main gate, driveway, front lawn, porch, entrance lobby, drawing room, pwd, kitchen, breakfast room, guest room, bath toilet, dressing, lounge, box, bedrooms, master bedroom etc.
Uploaded by:
Eiz
Luna

